Frente al núcleo de población, existe un paisaje bellísimo de contrastes, entre el primer plano que responde a una fértil llanura de vega, y su telón de fondo, unas pequeñas lomas arcillosas con grandes oradaciones, bastante espectaculares.
Proponemos la calle como ampliación del espacio útil de la vivienda, como costumbre de uso del lugar, en cuanto la climatología lo permite, por lo que creamos un espacio comunal ente las viviendas que conecta con la vega.
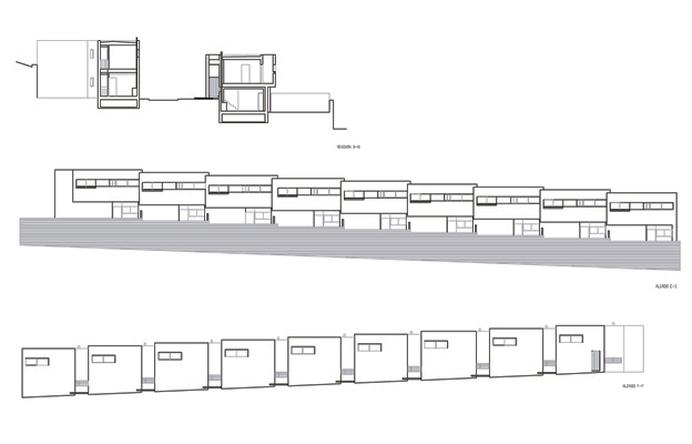
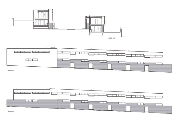
Es muy importante la sección para conocer el proyecto, es la que estructura la adaptación a los bancales y permite respirar al máximo las viviendas y posibilita de que todas disfruten del bello marco paisajístico que las acompaña.







