







Proponemos una imagen contundente, pero liberada de la rigidez propugnada por la convención. Construimos un basamento sobre la parcela, como una porción de los campos de Castilla, esa condición rural que actualmente posee por ser periferia y desaparecerá cuando se urbanice. No es tanto la intención de contextualizar el edificio, sino el hecho de entenderlo como un lugar sentido en la memoria de la región.
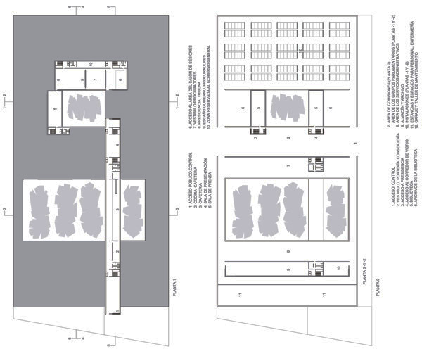
Bajo la cota de la calle se desarrolla el programa administrativo, independiente del programa institucional, en torno a un parque situado a tres plantas bajo rasante. El programa se desarrolla fragmentado en dos áreas, la de los servicios administrativos y la de los grupos parlamentarios. En el paisaje que construimos se añade el bosque como otro referente, para que cualquier ciudadano de la región sienta la identidad del edificio.
El edificio, por su diseño se construiría en hormigón pero con encofrado perdido a base de moldes de piedra del lugar (proponemos la de las catedrales). El material lleva implícito una idea arquitectónica, la imagen sobre el campo de cereal de un promontorio en donde se sitúa la referencia, que en este caso simboliza a una región de gran variedad de formas y rica en contrastes.