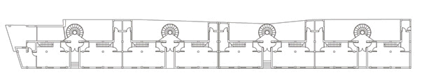
La edificación se construye en torno a una seriación de volúmenes crujías y patios. En la construcción de la manzana A establecemos la permeabilidad espacial desde la calle hasta el fondo del patio, condición esta favorecida por el suave clima del lugar. El acceso a la vivienda es a través del patio en torno a una escalera singularizada en el mismo y una galería abierta. Sobre la cubierta se dispone una malla, como elemento de arquitectura comunicativa, que dibuja un cerro, uno más de los que contonean la ciudad y desde donde se observa el mar. La manzana B, al ser de poco fondo, se opta por aprovecharlo y construir una larga fachada que resuelva el diálogo con el entorno que la conforma, su pendiente y fundamentalmente la esquina urbana. Como en el caso de la manzana A todos los espacios son exteriores. La manzana C tiene una tipología similar variando soluciones de fachada por no hacer esquina y no existir aun edificios construidos en sus medianeras.









